+32 475 94 99 80
HOME
OVER ONS
DE GOEDEREN
België
Frankrijk
ONZE DIENSTEN
EXPERTISE
CONTACT
Onze diensten
CONTACT
Nathalie
Ref : 6044701
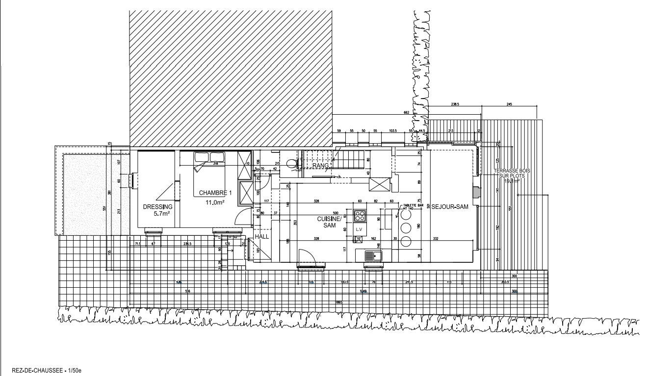
Lasne - 120m² - 3 slaapkamers
Belangrijke informatie
Beschikbaarheid :
verkocht
Staat :
Uitstekend
Gevels :
3
Aantal verdiepingen :
2
Oppervlakte :
120m²
Aantal badkamers :
1
Aantal toiletten :
2
Keuken :
ja
Type keuken :
VS geïnstalleerd
Aantal kamers :
3
Oppervlakte slaapkamer 1 :
18.6m²
Oppervlakte slaapkamer 2 :
11m²
Oppervlakte slaapkamer 3 :
10.5m²
Verwarming :
gas
Binnenstaanplaatsen :
ja
Terras :
ja
Tuin :
ja
Primair energieverbruik :
320kWh/m²
Energieklasse :
D
CO₂ Uitstoot :
6898kg CO₂/m²
Plan 1
Plan 2
Adres
Straat :
Rue de la Gendarmerie
Aantal :
22
Postcode :
1380
Stad :
Lasne
Wilt u deze woning bezoeken? Meer informatie nodig?
Naam
*
Voornaam
*
Email
*
Telefoon
Land
*
Selecteer een optie
België
Frankrijk
Uw verzoek
*
0 / 180
GDPR
*
Ja, ik accepteer het
Privacybeleid
Gezant
Voer dit veld niet in.