Nathalie

Ref : 6044701

Lasne - 120m² - 3 chambres

En exclusivité, à vendre proche du centre de Lasne, une maison de charme, 3 chambres de +/_ 120 m2 habitables sur un terrain de 5,5a.

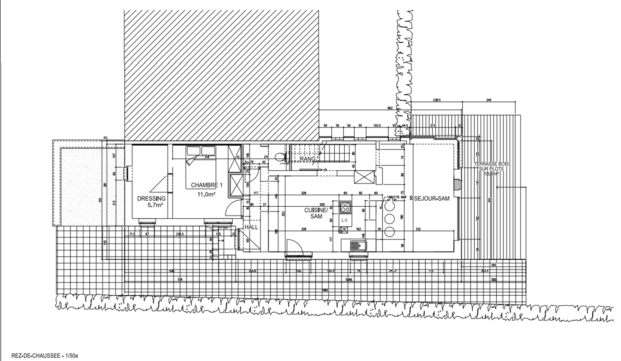
Au rez-de-chaussée : passé la porte d’entrée, un hall mène sur la gauche à une première chambre avec bureau (possibilité d’y installer une salle de bain, le raccordement étant déjà présent). Une toilette invité avec lave main.

Sur la droite du hall d’entrée les pièces de vie, la salle à manger, la cuisine ouverte et le salon donnant sur le jardin. Un espace buanderie.

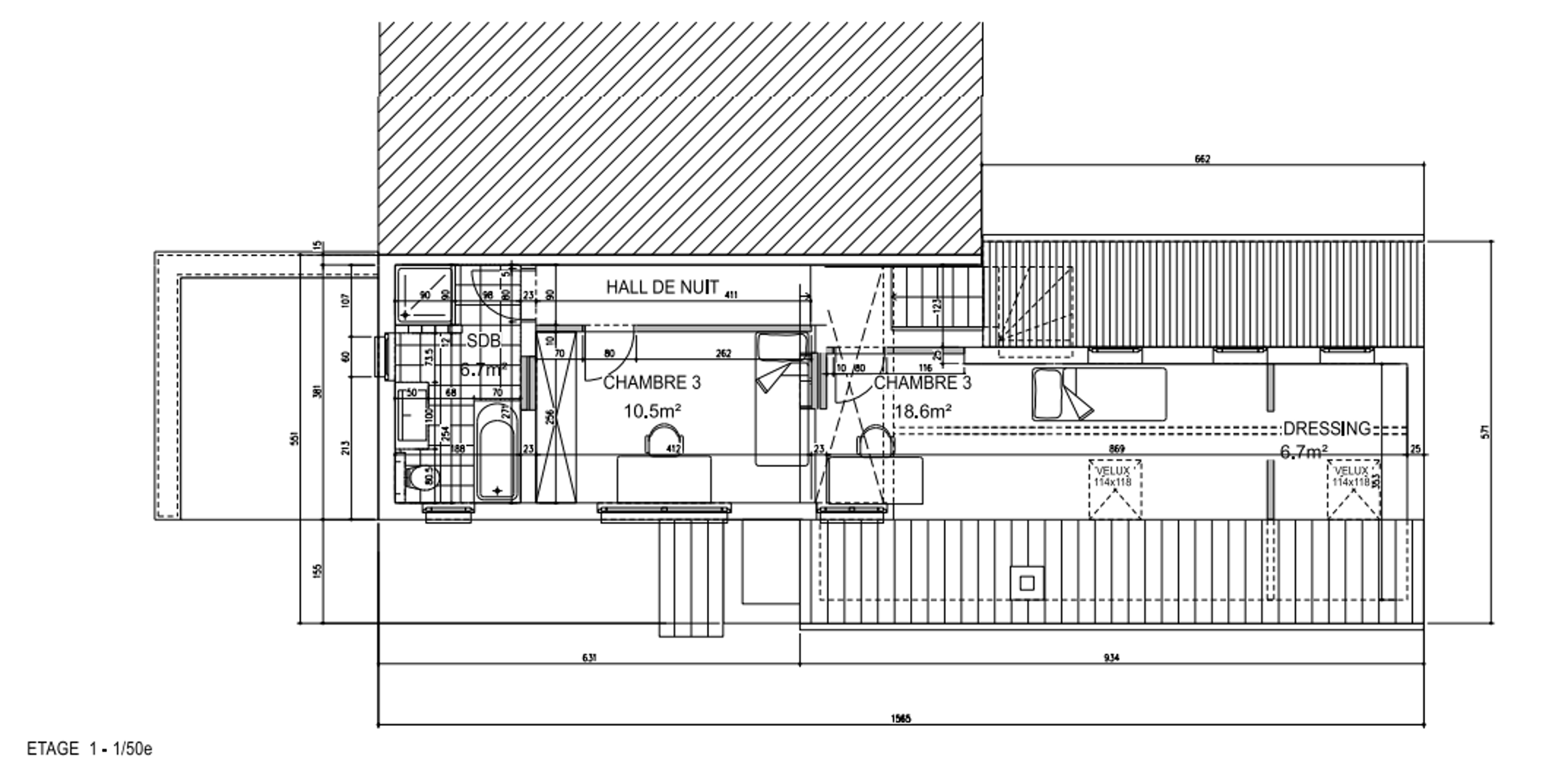
Un escalier permet d’accéder à l’étage. Sur la gauche, la deuxième chambre avec un second espace, une troisième chambre et la salle de douche avec toilette rénovée en ….

Du salon, l’accès vers la grande terrasse et le jardin est aisé. Le jardin est orienté au sud et profite donc d’un très bel ensoleillement. A l’arrière deux grandes remises dont la toiture a été complètement refaite

Divers : La cuisine, les sanitaires et les châssis en PVC (blanc à l’intérieur et écru striés à l’extérieur) ont été remis à neuf en 2016.

La maison dispose aussi de deux greniers de rangement. La chaudière est au gaz à condensation. L’électricité est conforme. La PEB est D. Possibilité de droit d’enregistrement réduits (zone de pression immobilière). Faible précompte immobilier.

Le centre de Lasne, les commerces et les moyens de transport (permettant de rejoindre LLN, Waterloo, Braine l’Alleud tout comme la Hulpe et Rixensart) sont à proximité immédiate à pied.

Renseignements et visites auprès de Stéphane Schweitzer au +32 475 94 99 80 ou par email : stephane@stephaneschweitzer.be.
Informations données à titre informatif et non contractuelles.

Informations cles

Disponibilité : vendu
Etat : Excellent état
Nombre de façades : 3
Nombre d'étages : 2
Surface : 120m²
Nombre de salles de bains : 1
Nombre de toilettes : 2
Cuisine : oui
Type de cuisne : amer. équipée
Nombre de chambres : 3
Surface de la chambre 1 : 18.6m²
Surface de la chambre 2 : 11m²
Surface de la chambre 3 : 10.5m²
Chauffage : gaz
Parking exterieur : oui
Terrasse : oui
Jardin : oui
Consommation énergétique : 320kWh/m²
Certificat énergétique : D
Emission CO2 : 6898kg CO₂/m²

Adresse

Rue : Rue de la Gendarmerie
Numéro : 22
Code postal : 1380
Ville : Lasne
 

Envie de visiter ce bien ? Besoin de plus d'informations ?


FR