Clement

Ref : 5980439

Woluwe-Saint-Pierre - 255m² - 4 chambres

850.000€

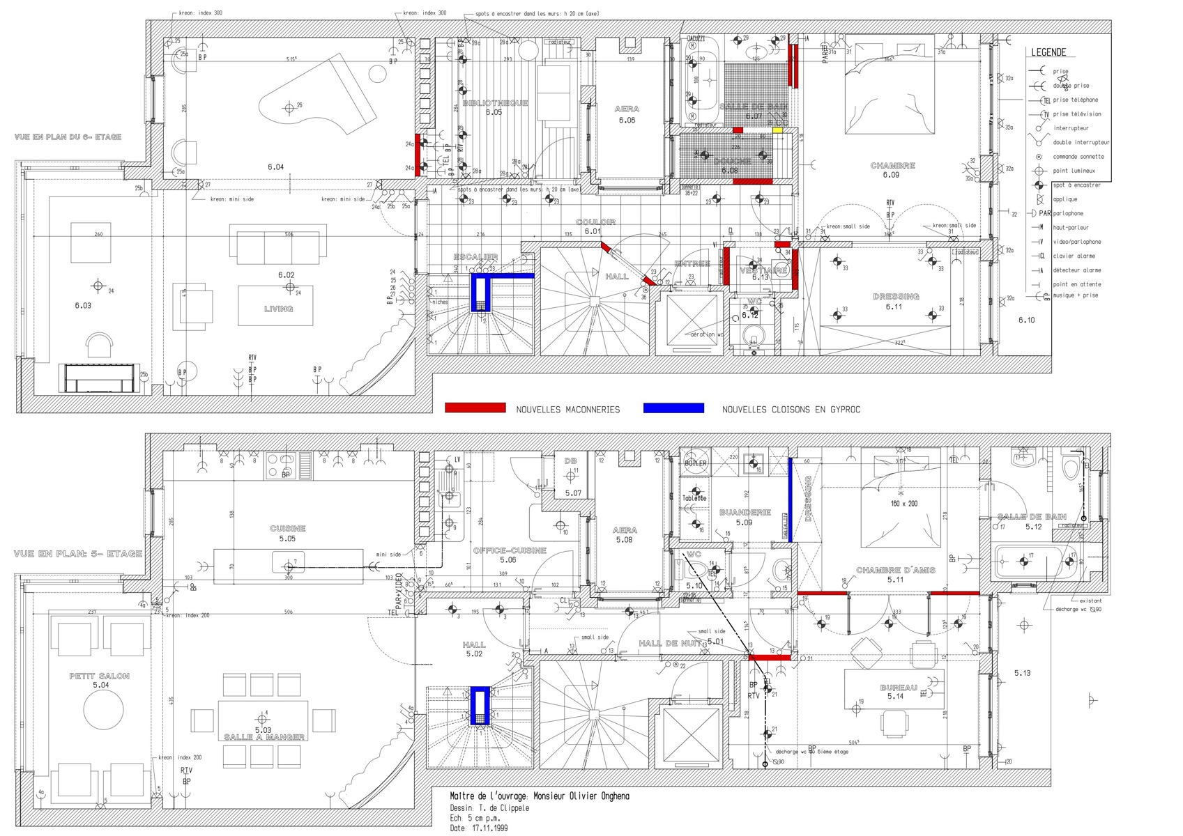
WSP- Deux appartements ou un duplex de charme
Situé au cinquième, sixième (et dernier étage) d’un immeuble des années 50, cet appartement duplex (ou deux appartements deux chambres) offre une vue imprenable sur le Square Montgomery. A proximité immédiate le parc de la Woluwe, le Cinquantenaire, la commerçante rue des Tongres, les transports en commun ainsi que de nombreuses écoles de qualité. Les institutions européennes ainsi que l’aéroport de Zaventem sont facilement accessibles.

Il se compose comme suit :
Au cinquième étage : le salon, salle à manger avec feu ouvert, la cuisine américaine super équipée, une buanderie, toilette séparée, chambre de ±26m² avec dressing (ou deuxième chambre), salle de bain et terrasse.Au sixième niveau: second living et pièce de vie (±43m²), une pièce supplémentaire pouvant être utilisée comme cuisine ( a réaménager) bureau, salle télé ou chambre d’amis, toilette séparée, chambre principale (± 22m²) avec dressing (ou deuxième chambre), salle de bain en suite et terrasse de ± 10m² orientée Sud-Ouest.

Un parking couvert un voiture (qui pourrait être transmis) est en location par le propriétaire actuel à proximité immédiate de l’appartement.
Deux caves en sous-sol complètent l’ensemble ainsi que la possibilité de garer son vélo.
Installation Bang&Olufsen, vidéophonie (2022), éclairage Kreon. L’isolation des toitures a été voté et provisionné et sera réalisé au T2/2024.

Ce que nous en pensons : Au cœur d’un quartier dont le renom n’est plus à faire, la qualité des matériaux, la taille et la modularité de l’espace proposé en un ou deux appartements offre à l’acquéreur de nombreuses et passionnantes possibilités d’aménagement. L’appartement peut en outre être utilisé en duplex ou comme deux appartements séparés mais « connectés ».

Renseignements et visites auprès de Stéphane Schweitzer : stephane@stephaneschweitzer.be ou au 0475/949 980.
Informations données à titre informatif et non contractuelles.

Voir en vidéo

Informations cles

Disponibilité : vendu
Etat : Excellent état
Nombre de façades : 2
Nombre d'étages : 6
Etage : 6
Surface : 255m²
Nombre de salles de bains : 2
Nombre de toilettes : 2
Type de cuisne : amer. super-équipée
Nombre de chambres : 4
Surface de la chambre 1 : 20m²
Surface de la chambre 2 : 15m²
Surface de la chambre 3 : 15m²
Surface de la chambre 4 : 12m²
Chauffage : gaz (chau. centr.)
Terrasse : oui
Consommation énergétique : 378kWh/m²
Certificat énergétique : G
Emission CO2 : 82kg CO₂/m²

Adresse

Rue : Avenue de Tervueren
Numéro : 161
Code postal : 1150
Ville : Woluwe-Saint-Pierre
 

Envie de visiter ce bien ? Besoin de plus d'informations ?


FR