Colette

Ref : 6782978

La hulpe - 272m² - 5 chambres

La Hulpe, Quartier Wolfers, une villa de charme en parfait état

Nichée au cœur d’un écrin de verdure, cette charmante villa à quatre façades vous invite à découvrir un havre de paix à seulement 20 minutes de l’effervescence bruxelloise.

Implantée sur un terrain généreux de 1909 m², cette propriété se distingue par son emplacement privilégié offrant une tranquillité absolue tout en restant proche des commodités. À trois minutes à pied des commerces et des transports en commun (train et bus vers Bruxelles), et avec un accès rapide à l’autoroute E411, cette villa allie parfaitement sérénité et praticité.

Le jardin, orné d’arbres centenaires, est un véritable sanctuaire de verdure. Son orientation est/sud/sud-ouest et sa situation discrète garantissent une intimité totale, vous permettant de profiter pleinement de la nature environnante.

Construite en 1962 et méticuleusement entretenue, cette demeure de 325 m² (certificat PEB) est en excellent état.

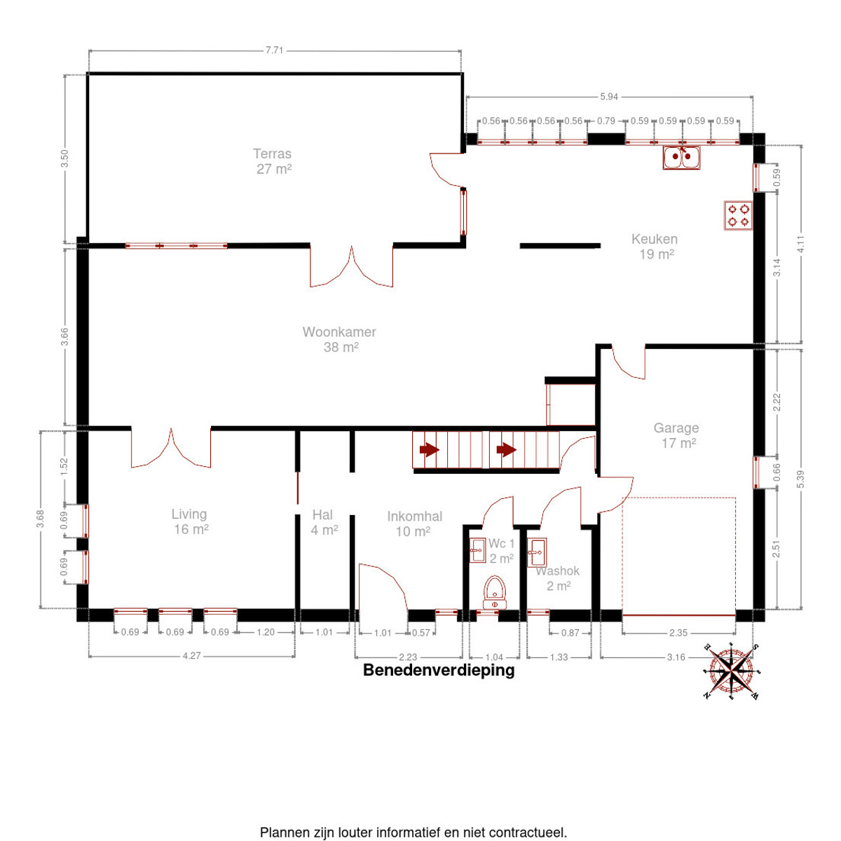
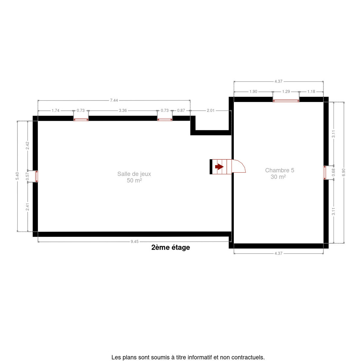
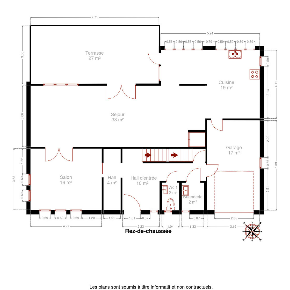
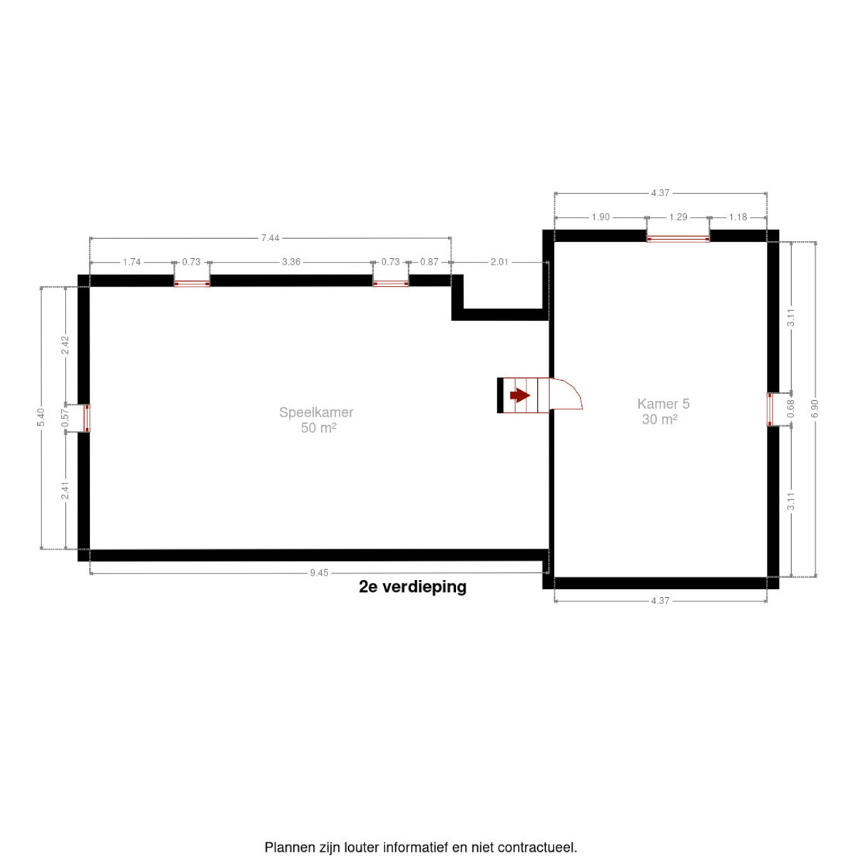
Les espaces de vie sont généreux : une grande cuisine, une salle à manger, un salon, une salle de télévision et un petit bureau, autant de pièces où il fait bon vivre. Cinq chambres : chacune offrant un espace de repos et de détente, idéal pour une grande famille ou pour recevoir des invités, trois salles d’eau (dont une avec baignoire) et trois toilettes. Une grande salle de jeu à l’étage.
Un garage et une place de parking extérieure pour accueillir vos véhicules ainsi qu’une grande cabane de jardin pour les vélos et le rangement.
Le certificat PEB ‘B : une performance énergétique remarquable, grâce à ses 42 panneaux solaires et sa pompe à chaleur haute température, assurant le chauffage de la maison et l’eau chaude sanitaire.

Dossier complet, renseignements et visites auprès de Stéphane Schweitzer au 0475/949 980 –

Voir en vidéo

Informations cles

Disponibilité : vendu
Etat : Excellent état
Nombre de façades : 4
Nombre d'étages : 4
Surface : 272m²
Nombre de salles de bains : 1
Nombre de toilettes : 3
Cuisine : oui
Type de cuisne : super-équipée
Surface de la cuisine : 18.59m²
Nombre de chambres : 5
Surface de la chambre 1 : 12.45m²
Surface de la chambre 2 : 15.22m²
Surface de la chambre 3 : 19.85m²
Surface de la chambre 4 : 18.3m²
Surface de la chambre 5 : 30.16m²
Chauffage : accumulateurs électriques
Parking exterieur : oui
Parking intérieur : oui
Terrasse : oui
Jardin : oui
Consommation énergétique : 132kWh/m²
Certificat énergétique : B
Emission CO2 : 10991kg CO₂/m²

Envie de visiter ce bien ? Besoin de plus d'informations ?


FR