Charlotte

Ref : 5629699

Uccle - 370m² - 4 chambres

Uccle, un hôtel particulier de 1920 avec piscine entièrement rénové.

Situé à deux pas de l’avenue Brugmann et à quelques minutes du Royal Léopold club. L’avenue Louise, la gare du Midi, le bois de la Cambre, la forêt de Soignes, le lycée français et l’école européenne de Uccle sont à 10 minutes en voiture.

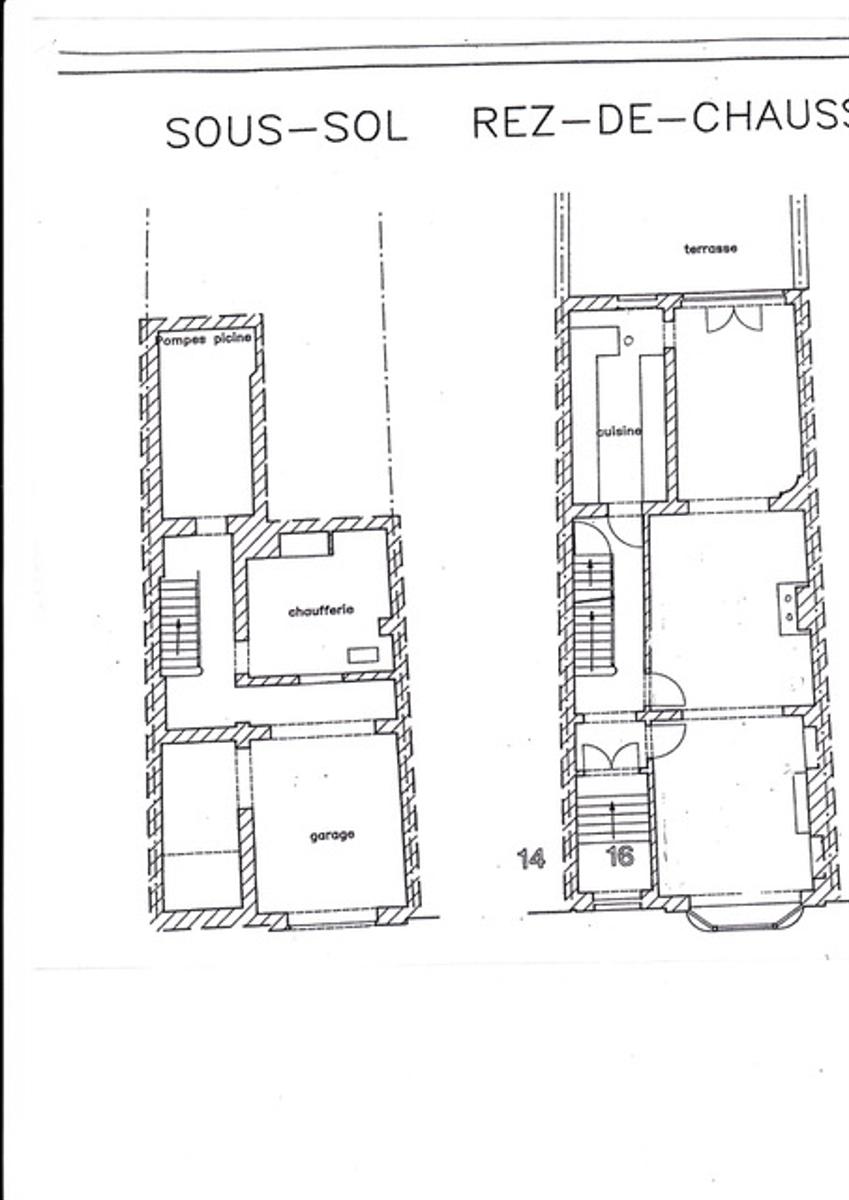
D’une superficie de 370 m2 il se compose de trois niveaux et du sous-sol. La façade de 6m50 est en pierre de France et briques rouges. Le balcon en fer forgé. Les parquets sont en chêne massif ancien, les plafonds sont moulurés d’origine.Au rez-de-chaussée, on retrouve une enfilade de réceptions, bibliothèque, cheminée et salle à manger avec accès à une terrasse. Sur la gauche, une cuisine Gaggenau très bien équipée. Le jardin est arboré avec une piscine en mosaïque blanche et nage à contre-courant. Au premier étage, une chambre de 24m2 avec balcon, un dressing de 18m2 et une salle de bains de 25m2 avec terrasse en teck donnant sur le jardin. Une toilette invité séparé. Au second trois chambres et une salle de douche. Le sol est en teck huilé.Au sous-sol, un garage une voiture, une buanderie, le cellier et cave à vin ainsi que l’espace machinerie piscine.Double vitrage antiphonique, système d’alarme. PEB en cours

Renseignements et visites auprès de Stéphane Schweitzer au +32 475 949 980 – stephane@stephaneschweitzer.be

Informations données à titre informatif et non contractuelles.

Informations cles

Disponibilité : vendu
Etat : Excellent état
Nombre de façades : 2
Nombre d'étages : 3
Surface : 370m²
Nombre de salles de bains : 2
Nombre de toilettes : 3
Cuisine : oui
Type de cuisne : super-équipée
Nombre de chambres : 4
Surface de la chambre 1 : 40m²
Surface de la chambre 2 : 20m²
Surface de la chambre 3 : 15m²
Surface de la chambre 4 : 14m²
Chauffage : gaz
Terrasse : oui
Jardin : oui
Consommation énergétique : 506kWh/m²
Certificat énergétique : G
Emission CO2 : 99kg CO₂/m²

Envie de visiter ce bien ? Besoin de plus d'informations ?


FR